新竹縣竹東鎮水資源回收中心廠,汙水處理處的曝氣槽,所使用的魯式鼓風機省電節能改善案:結論式,將原有6台魯式鼓風機,改用2台氣旋式離心鼓風機後,將原有用電量可達到減少原用電量目標,效能有節省30%以上的效益。

改善說明及結果:
將原有操作中之6部魯式鼓風機(30Hp),汰換更新掉2部魯氏鼓風機以符合操作現況下,汰換為2部單段離心式鼓風機(75Hp)(規格為:風量:47CMM,風壓:6000mmAq),並設置變頻器及風壓控制設施,可進行風壓及風量調節,若未來處理水量增加可依需求調節進行多機運轉及交替使用。
舊有魯式風機圖:

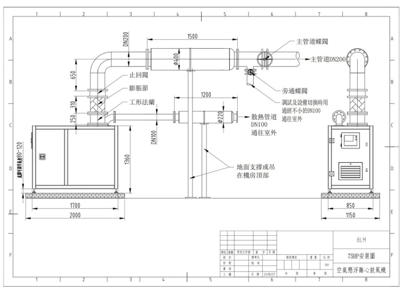
新型氣懸浮離心式鼓風機圖面:


效益比較:1台離心鼓風機,可有節電198.5萬元的年效益。
| 對比項目 | 魯式鼓風機 | 氣旋式 離心鼓風機 |
| 出口壓力(kPa) | 80 | 80 |
| 流量(CMM) | 41 | 82 |
| 風機台數 | 2 | 1 |
| 電機功率(kW) | 90 | 110 |
| 年總耗電量(kW*H) (8,400 Hr/年) | 1,293,600 | 882,000 |
| 年總電費(元) | 8,731,800 | 6,747,300 |
| 年運轉電費差異 | -1,984,500 |

